Skip To Content

811 W Ohio Avenue

Tampa, FL 33603
  • $1,449,000
  • STATUS: Active
  • ON SITE: 209 Days
  • MLS #: TB8386153
UPDATED: 41 min ago
$1,449,000
  • 5
    BEDS
  • 0.22
    ACRES
  • 5
    BATHS
  • 0
    1/2 BATHS
  • 3,500
    SQFT
  • $414
    $/SQFT
Neighborhood:
Type:
Single-Family Home
Built:
1949
County:

School Ratings & Info

Description

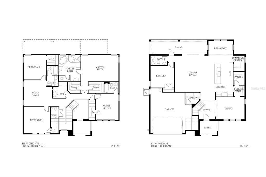
Under Construction. Another exquisite top quality home by Mobley Homes Custom is coming to the highly sought after neighborhood of Riverside Heights! This executive home sits on a LARGE LOT measuring 75x130 and will overlook an original charming brick street. A paver driveway greets you as you arrive. Once inside this beauty you will step into a grand foyer that opens up to a magnificent great room with an open floorplan. Your gorgeous designer kitchen overlooks all of the action and it features a HUGE ISLAND, GE Cafe Appliances and SPACIOUS WALK IN PANTRY. Access your beautiful formal dining room through a BUTLER'S PANTRY off the kitchen. Also right off the kitchen is your very own Command Center. Entertain all of your guests here with style and ease as they enjoy lovely views through the large glass sliders looking out onto your covered lanai and backyard. Engineered hardwood floors cover the first floor, stairs and upstairs hall and 5" crown molding tops off the high ceilings on the first floor. There are many upgraded finishes throughout this stunning home! Look book coming soon. This cozy neighborhood is just minutes away from Armature Works, the sparkling Riverwalk, Downtown and Tampa International Airport. NO FLOOD ZONE!!

Monthly Payment Calculator




© 2025 My Florida Regional MLS DBA Stellar MLS. All rights reserved. All listings displayed pursuant to IDX. All listing information is deemed reliable but not guaranteed and should be independently verified through personal inspection by appropriate professionals. Listings displayed on this website may be subject to prior sale or removal from sale; availability of any listing should always be independently verified. Listing information is provided for consumers personal, non-commercial use, solely to identify potential properties for potential purchase; all other use is strictly prohibited and may violate relevant federal and state law. Data last updated 2025-12-10T17:45:35.363.
www.alltampalistings.com/homes/163818511
Print Image

811 W Ohio Avenue Tampa, FL 33603

  • Price: $1,449,000
  • Status: Active
  • On Site: 209 Days
  • Updated: 41 min ago
  • MLS #: TB8386153
5
Beds
5
Baths
0
½ Baths
0.22
Acres
3,500
SQFT
$414
$/SQFT
1949
Built
Neighborhood:
Riverside North
County:
Hillsborough
Area:
Tampa / Seminole Heights
Property Description
Under Construction. Another exquisite top quality home by Mobley Homes Custom is coming to the highly sought after neighborhood of Riverside Heights! This executive home sits on a LARGE LOT measuring 75x130 and will overlook an original charming brick street. A paver driveway greets you as you arrive. Once inside this beauty you will step into a grand foyer that opens up to a magnificent great room with an open floorplan. Your gorgeous designer kitchen overlooks all of the action and it features a HUGE ISLAND, GE Cafe Appliances and SPACIOUS WALK IN PANTRY. Access your beautiful formal dining room through a BUTLER'S PANTRY off the kitchen. Also right off the kitchen is your very own Command Center. Entertain all of your guests here with style and ease as they enjoy lovely views through the large glass sliders looking out onto your covered lanai and backyard. Engineered hardwood floors cover the first floor, stairs and upstairs hall and 5" crown molding tops off the high ceilings on the first floor. There are many upgraded finishes throughout this stunning home! Look book coming soon. This cozy neighborhood is just minutes away from Armature Works, the sparkling Riverwalk, Downtown and Tampa International Airport. NO FLOOD ZONE!!
Exterior Features

Attached Garage Yn Yes Carport Yn No Construction Materials BlockStuccoWood Frame Covered Spaces 2 Direction Faces South Exterior Features Other Foundation Details Stem Wall Lot Features City Lot Patio And Porch Features CoveredRear Porch Pool Private Yn No Road Frontage Type Street Brick Road Surface Type Brick Roof Tile Water Access Yn No Water Extras Yn No Water View Yn No Waterfront Feet Total 0 Waterfront Yn No

Interior Features

Additional Rooms Bonus RoomFormal Dining Room SeparateGreat RoomInside Utility Appliances DishwasherMicrowaveRangeRefrigerator Building Area Total 4424 Cooling Central Air Cooling YN Yes Fireplace Yn No Flooring CarpetCeramic TileEngineered Hardwood Heating Electric Heating YN Yes Interior Features Crown MoldingOpen FloorplanPrimaryBedroom UpstairsStone CountersThermostatWalk-In Closet(s) Laundry Features InsideLaundry Room Levels Two Rooms Kitchen (No Closet) Great Room (No Closet) Primary Bedroom (Walk-In Closet(s)) Sewer Public Sewer Water Source Public

Property Features

Association Yn No Builder Name Mobley Homes Custom LLC Cdd Yn No Community Features Golf Carts OKParkPlayground Down Payment Resource No Flood Zone Code X Garage Yn Yes Homestead Yn No Lease Considered YN Yes Lease Restrictions YN No Listing Terms CashConventional Minimum Lease No Minimum New Construction Yn Yes Ownership Fee Simple Pets Allowed Cats OKDogs OK Projected Completion Date 5/1/2026 4:00:00 AM Property Condition Under Construction Property Sub Type Single Family Residence Required Remarks Under Construction. Senior Community Yn No Special Listing Conditions None Tax Annual Amount 1145 Total Annual Fees 0 Total Monthly Fees 0 Utilities BB/HS Internet AvailableElectricity ConnectedSewer ConnectedStreet LightsWater Connected Zoning RS-60


Listing information © 2025 My Florida Regional MLS DBA Stellar MLS..
Listing provided courtesy of COMPASS FLORIDA LLC: 305-851-2820.



© 2025 My Florida Regional MLS DBA Stellar MLS. All rights reserved. All listings displayed pursuant to IDX. All listing information is deemed reliable but not guaranteed and should be independently verified through personal inspection by appropriate professionals. Listings displayed on this website may be subject to prior sale or removal from sale; availability of any listing should always be independently verified. Listing information is provided for consumers personal, non-commercial use, solely to identify potential properties for potential purchase; all other use is strictly prohibited and may violate relevant federal and state law. Data last updated 2025-12-10T17:45:35.363.
 
https://bt-photos.global.ssl.fastly.net/mfr/orig_boomver_1_TB8386153-2.jpg https://bt-photos.global.ssl.fastly.net/mfr/orig_boomver_1_TB8386153-2.jpg
Logo
Signature Realty Associates
1709 Bloomingdale Ave
Valrico FL, 33596